Frames für Ihre Rolltorprojekte

neu im Rolltorkonfigurator.

Frames für Ihre Rolltorprojekte


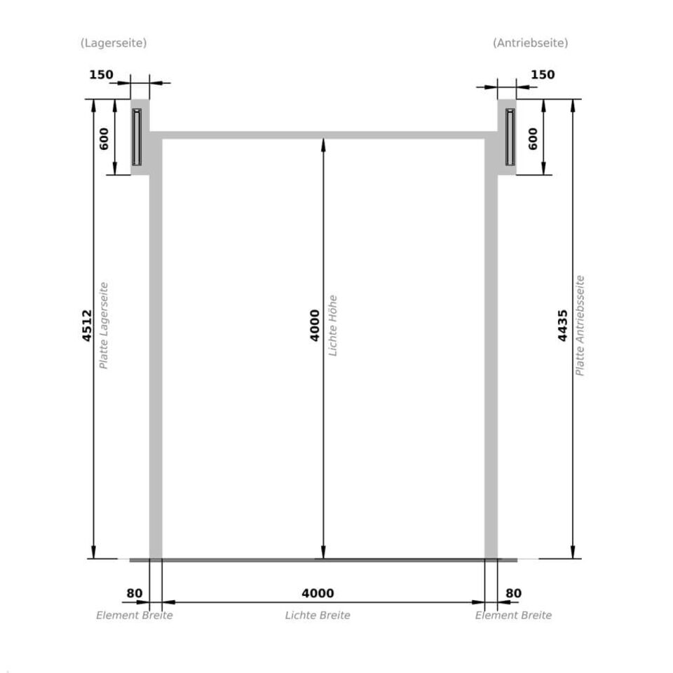
In unserem Rolltorkonfigurator werden ab 01.06.2022 außer den bereits sehr beliebten bemaßten Zeichnungen des Rolltors auch bemaßte Zeichnungen von Frames für Ihre Rolltorprojekte mit unseren Profilen bereitgestellt.
Diese Zeichnungen werden Ihnen die Vorarbeit zur Erstellung einer eventuell benötigten Unterkonstruktion für die Anbringung unserer Rolltore enorm erleichtern.
 

Zum Rolltorkonfigurator